聯系人: 許先生
手機:13656237188
電話:0512-89991032
傳真:0512-68837004
郵箱:306684063@qq.com
地址:蘇州高新區獅山街生活廣場
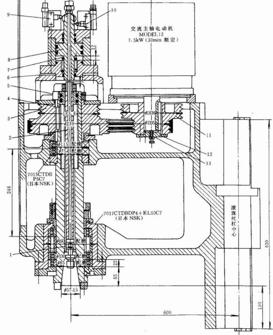
精密車削加工中心主軸松拉刀工作原理
主軸松拉刀是精密車削加工中心的基本功能,無論型號如何其結構基本上大同小異,本文主要介紹精密車削加工中心主軸松拉刀的基本結構及工作原理:

1-拉釘 2-拉桿 3-帶輪 4-碟形彈簧 5-鎖緊螺母 6-調整墊 7-螺旋彈簧 8-活塞 9、10-行程開關 11-帶輪 12-端蓋 13-調整螺釘
主軸內部有刀桿的自動夾緊機構,它由拉桿2和頭部的4個鋼球、碟形彈簧4、活塞桿8和螺旋彈簧7組成。夾緊時活塞8的上端無油壓,彈簧7使活塞8向上移至圖示位置。碟形彈簧4使拉桿2上移至圖示位置,鋼球進入到刀桿尾部拉釘1的環形槽內,將刀桿拉緊。放松時,液壓使活塞8下移,推拉桿2下移。鋼球進入主軸后錐孔上部的環形槽內,把刀桿放開。當機械手把刀桿從主軸中拔出后,壓縮空氣通過活塞和拉桿的中孔,把主軸錐孔吹凈。
行程開關9和10用于發出夾緊和放松刀桿的信號。
刀桿夾緊機構用彈簧、液壓夾緊,液壓放松,以保證停電刀桿不會松脫 。夾緊時活塞8和拉桿2的上端之間有一定間隙(約4mm),以防止主軸旋轉時端面摩擦。

精密車削加工中心采用錐柄刀具,錐部的尾端安裝有拉釘1,有拉桿2通過4個5/16in的鋼球拉住拉釘1的凹槽,使刀具在主軸錐孔內定位及夾緊。拉緊力由碟形彈簧4產生。碟形彈簧共有34對68片。拉緊刀具的拉緊力等于10kN,最大為13kN。
換刀時,活塞8的行程為12mm。前進約4mm后,它開始推動拉桿2,直到鋼球進入主軸錐孔上部的Φ37mm的環槽。這時鋼球已不能約束拉釘的頭部。拉桿繼續下降,拉桿的a面與拉釘的頂端接觸,把刀具從主軸錐孔中推出。行程開關10發出信號,機械手即可將刀具取出。
修磨調整墊塊6就可保證當活塞的行程到達終點時拉桿的a面與拉釘的頂端接觸。
活塞8推動拉桿把刀具推出,故活塞的最大推力應等于13kN加彈簧7的彈力。
